Ajánlói Link másolása
XIV. kerület
kep Galéria
kep
kep
kep
kep
Feladva:2026-02-12 03:15
Profi hirdetés kiemelés előresorolással kiemelés 20+5 napig
Budapest XIV. kerület
369 000 000 Ft
XIV. kerület
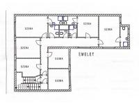
A FEJLŐDŐ BOSNYÁK TÉR SZOMSZÉDSÁGÁBAN!!! TÁRSASHÁZ!!! EGÉSZSÉGÜGYI INTÉZMÉNY!!! IRODAHÁZ!!! WELNESS KÖZPONT!!! XIV. kerületben, ALSÓRÁKOSON, eladó egy bruttó 449 m2-es telken fekvő bruttó 600 m2-es családi ház. (nettó 420 m2) 10 szoba + 9 félszoba. A házban 5-6 lakás kialakítása lehetséges. A ház az 1980-as években épült. A welness részleg az 1990-es években lett hozzáépítve. A ház további jellemzői: - PER- és TEHERMENTES - RÖVID HATÁRIDŐVEL BIRTOKBA VEHETŐ - CSENDES kertvárosi környezet - terasz (kb. 70 m2) - minden közmű egyedileg mérhető - garázs (3 db.) - kert - klíma (2 db.) Fűtése: cirkó és gázkazán. (3 DB.) Közlekedés: kiváló (5, 69, 32-es busz, 3, 62, 62A villamos, 74, 74A, 82-es trolibusz, M1 MEXIKÓI ÚT metróállomás pár percen belül elérhető, 973 éjszakai járat). Az M3 bevezető szakasza autóval 5 percen belül elérhető. A hirdetésben feltüntetett adatok és információk csak tájékoztató jellegűek, jogi kötelezettséggel nem bíró jognyilatkozatnak minősülnek, mely nem tekinthető ajánlat tételnek és nem járnak az eladóra nézve kötelező ajánlati kötöttséggel. Ügyfeleink részére BANKFÜGGETLEN hitelügyintéző kollégáink szívesen nyújtanak segítséget. Amennyiben felkeltettem az érdeklődését vagy bármely további kérdése lenne, keressen bizalommal. Akár hétvégén is! CSA
Bruttó ár
369 000 000 Ft
Elérhetőségek
+36-... Megjelenítés
Weboldal link
0
Videó link
0
Cim
Magyarország

Budapest XIV. kerület
Több lakásos társasház?
Hirdetés leirása
Hirdetés azonosító:36675