Ajánlói Link másolása
XII. kerület
kep Galéria
kep
kep
kep
kep
Feladva:2025-10-07 02:07
Profi hirdetés kiemelés előresorolással kiemelés 20+5 napig
Budapest XII. kerület
130 000 000 Ft
XII. kerület
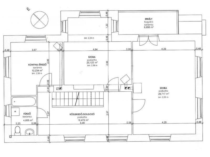
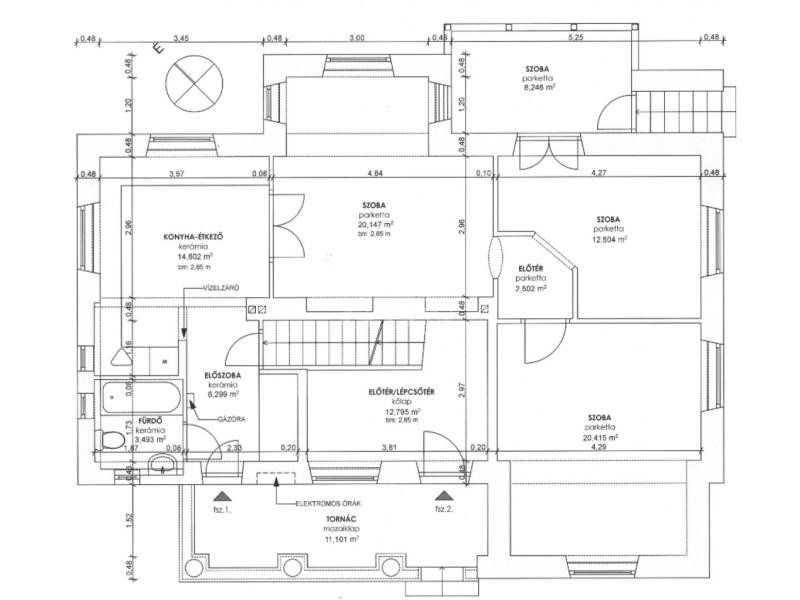
Eladásra kínálunk Kútvölgy kedvelt részén egy Ősfás 1100 m2 területen elhelyezkedő patinás házban található 100 m2 panorámás lakást. Az ingatlanhoz 150-200 m2 kertrész is tartozik. A 2 szobás 100 m2-es lakás az épület első emeltén helyezkedik el. Lakás elrendezése: Földszint: • Lépcsőház - gardrob 12,7 m2 • Tornác 5,5 m2 Emelet: • 2 db. szoba 20,1 m2 + 28,7 m2 • Közlekedő -dolgozó sarok 16,47 m2 • Konyha 12,2 m2 • Fürdőszoba 4,8 m2 • Erkély 7 m2 Kert: • 150 - 200 m2 kertrész A ház 1940-ben épült 55 cm vastag téglafalakkal. Az épület szerkezetileg jó állapotú – feljutása és korszerűsítése esedékes. Az ingatlant fiatal pároknak -családoknak egyaránt ajánljuk. A társasházban párhuzamosan kerül értékesítésre a hírdetésben szereplő 100 m2 és az az alatta található 93 m2 db.földszinti lakás. Amennyiben Önnek a vásárláshoz szüksége lenne hitelre egyedi kedvezménnyel,kezdeményezheti a kapcsolatfelvételt bankfüggetlen hitelügyintézőinkkel, teljesen DÍJMENTESEN. Az ingatlan részletes ismertetése és bemutatása előre egyeztetett időpontban lehetséges, melyet nagyon rugalmasan kezelünk, akár HÉTVÉGÉN is. Amennyiben felkeltette az érdeklődését, további kérdéseivel kapcsolatban várom jelentkezését!
Bruttó ár
130 000 000 Ft
Elérhetőségek
+36-... Megjelenítés
Weboldal link
0
Videó link
0
Cim
Magyarország

Budapest XII. kerület
Kútvölgy panorámás lakás!
Hirdetés leirása
Hirdetés azonosító:38092