Kiadó XII. kerület
PANORÁMA ÉS ZÖLD KÖRNYEZET A BELVÁROS KÖZELÉBEN
KIS-SVÁB-HEGYEN, PANORÁMÁS, TERASZOS LAKÁS KIADÓ
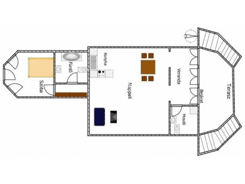
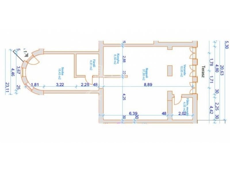
A XII. kerületben, jó tömegközlekedéssel rendelkező, csendes környéken kiadó egy 2 szobás, kertre néző lakás 15 nm-es panorámás terasszal.
A lakás egy 3 szintes, 6 lakásos, 1920-as években épült, jó állapotú villaépületben található, nagy kerttel körülvéve.
2008-ban teljes műszaki felújítást végeztek rajta, 2025-ben esztétikai javítást és tisztasági festést kapott.
A nappali, konyha és étkező keleti tájolású, kertre néző, innen nyílik a terasz is.
A fürdőszoba a nappali és hálószoba között található, a bejárat mellett külön háztartási helyiség WC-vel és kézmosóval. Fűtés: cirkó kazán.
A lakás bútorozott, gépesített konyhával és mosógéppel felszerelve.
Közlekedés: busszal és gyalogosan is gyorsan elérhető az Alkotás utca, a Déli pályaudvar és a Széll Kálmán tér.
Azonnal költözhető.
Érdeklődjön, szívesen megmutatom!
ID: 334105