Profi hirdetés kiemelés előresorolással kiemelés 20+5 napig
Budapest XI. kerület
119 900 000 Ft
XI. kerület
SASAD LIGET LAKÓPARK 5. ÜTEMBEN LEGFELSŐ EMELETI ELVEHETETLEN PANORÁMÁS KOMPAKT LAKÁS
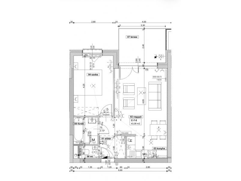
Lakás 43,08 nm, terasz 8,48 nm
A panoráma örök és elvehetetlen.
A konyha gépesített.
Hűtő-fűtő klíma minden eshetőségre.
Panorámás, fedett terasz bútorokkal.
Szoba, előszoba, fürdőszoba beépített bútorokkal.
A teljes jelenlegi berendezés megbeszélés tárgyát képezi.
Amennyiben szükségét érzi a lakáshoz teremgarázs beálló is vásárolható.
Bármilyen kérdés esetén várom hívását!
Amennyiben nem rendelkezik a teljes vételárral szívesen segítünk megtalálni az Önnek megfelelő finanszírozási formát is.
A hirdető nem rendelkezik saját hirdetési aloldallal.