Ajánlói Link másolása
VIII. kerület
kep Galéria
kep
kep
kep
kep
Feladva:2025-11-14 02:03
Profi hirdetés kiemelés előresorolással kiemelés 20+5 napig
Budapest VIII. kerület
63 000 000 Ft
VIII. kerület
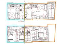
Eladó két külön bejáratú, prémium minőségű, belső kétszintes lakás a Horváth Mihály tér mellett! Budapest VIII. kerületében, a Német utcában, a Horváth Mihály tér közvetlen közelében, egy hangulatos, szép állapotú társasház földszintjén eladó két külön bejáratú, ügyvédi használati megosztással elválasztott, teljeskörűen felújított, bútorozott és gépesített lakás Mindkét lakás belső kétszintes, duplakomfortos, és kiváló elosztású: A földszinten: nappali + konyha + fürdő + WC Az emeleten: két, egymástól külön zárható hálószoba, valamint további fürdő és WC Az alsó szinten 220 cm, a felsőn 205 cm a belmagasság. A lakások külön villany- és vízórával rendelkeznek, fűtésüket BVF elektromos padlófűtés, hűtésüket pedig inverteres klímák (lent és fent) biztosítják. A vételár tartalmazza a teljes bútorzatot és gépesítést, így az ingatlanok azonnal költözhetők vagy kiadhatók! "A " LAKÁS Hasznos alapterület: 40 m² Alsó szint: 20,3 m² Felső szint: 19,7 m² Elrendezés: Földszint: nappali + konyha + fürdő + WC Emelet: 2 külön hálószoba + további fürdő és WC Teljesen felújított, bútorozott, gépesített Külön mérőórák, BVF padlófűtés, inverteres klíma Ár: 63.000.000 Ft "B" LAKÁS Hasznos alapterület: 51 m² Alsó szint: 26 m² Felső szint: 25 m² Különlegesség: egy 11 m²-es beépített télikert, amely a zöld udvarra néz – igazi ritkaság a belvárosban! (A télikert nem része az alapterületnek, ezzel együtt kb. 62 m².) Elrendezés: Földszint: nappali + konyha + fürdő + WC Emelet: 2 külön hálószoba + további fürdő és WC Teljesen bútorozott, gépesített, prémium kivitel Ár: 73.000.000 Ft Miért különleges ez az ajánlat? Két külön bejáratú, külön mérőórás lakás – ideális befektetésre vagy kétgenerációs otthonnak Központi elhelyezkedés, mégis csendes, zöld udvarra néző környezet Modern, energiatakarékos megoldások (elektromos padlófűtés, inverteres klímák) Teljesen bútorozott és gépesített – csak a bőröndöt kell hozni Kiváló közlekedés: pár perc sétára a Blaha Lujza tér, Rákóczi tér, 4-6-os villamos, M2 és M4 metró
Bruttó ár
63 000 000 Ft
Elérhetőségek
+36-... Megjelenítés
Weboldal link
0
Videó link
0
Cim
Magyarország

Budapest VIII. kerület
Német utca
Hirdetés leirása
Hirdetés azonosító:38968