Ajánlói Link másolása
VII. kerület
kep Galéria
kep
kep
kep
kep
Feladva:2025-12-02 02:09
Profi hirdetés kiemelés előresorolással kiemelés 20+5 napig
Budapest VII. kerület
180 000 000 Ft
VII. kerület
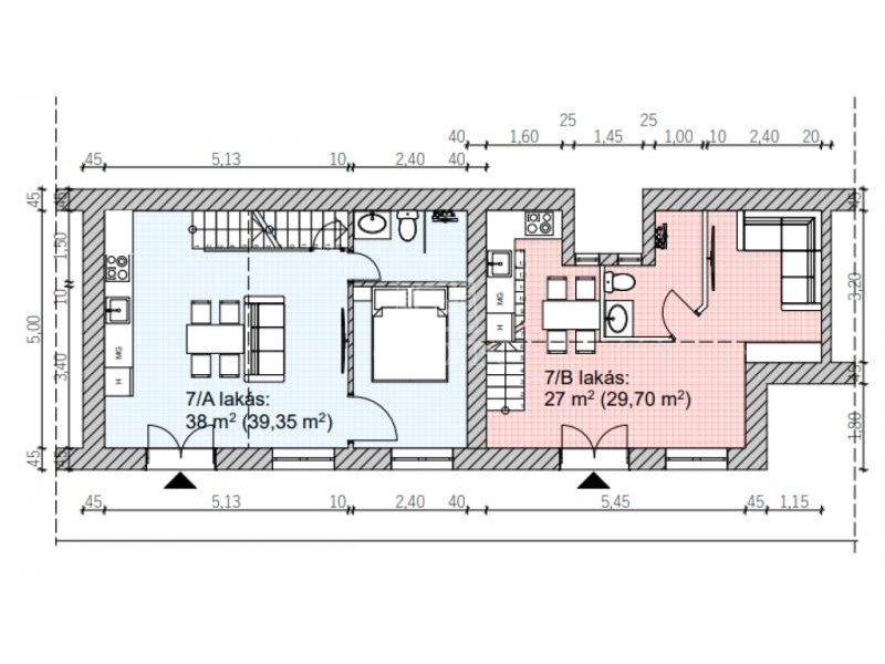
Modern igényesen felújított lakás eladó! Külön bejáratú, két lakássá alakított ingatlant kínálunk megvételre a Damjanich utca kedvelt részén, liftes ház 2. emeletén, galériával együtt 107 nm hasznos alapterülettel. Az ingatlan teljeskörűen felújított, minőségi bútorokkal és gépekkel berendezett, minden részletét gondosan megtervezték. A lakások tágas terekkel rendelkeznek, világosak, minden helyiségen ablak van. " A"- lakás rendkívül jó beosztású, hasznos alapterülete 61 nm. - alapterület 38 nm. - beosztása: - előtér, - konyha + étkező + nappali, - hálószoba, - fürdőszoba +WC, - teljesértékű galéria 23 nm. - beosztása: - hálószoba, - gardrób szoba, Ebben a lakásban a fűtés gáz Mika kazánnal történik +1 db hűtő-fűtő klíma van. " B"- lakás rendkívül jó beosztású, hasznos alapterülete 46 nm. - alapterület 27 nm. - beosztása: - előtér, - konyha + étkező + nappali, - fürdőszoba +WC, - teljesértékű galéria 19 nm. - beosztása: - hálószoba, Ebben a lakásban elektromos padlófűtés van + 1 db hűtő-fűtő klíma. A fűtés, villanybojler, redőnyök, lámpák, mosógép távolról vezérelhető. A konyhák gépesítettek. A lakások külön mérőórákkal rendelkeznek. Az ingatlan befektetésnek kíváló, könnyen kiadható az Állatorvosi Egyetem és a turisztikai látványosságok közelsége miatt. A környék rendkívül kedvelt, a Városliget, a Hősök tere és az Andrássy út néhány perc sétával elérhető. Amivel segítjük az Ön ingatlanvásárlását: - ingyenes hitelügyintézés, - jogi háttér, - földhivatali ügyintézés, - energetikai tanúsítvány, - a vevő számára az ingatlanközvetítés ingyenes. Irodánk 30 éves szakmai tapasztalattal áll ügyfelei rendelkezésére! Várom szíves megkeresését!
Bruttó ár
180 000 000 Ft
Elérhetőségek
+36-... Megjelenítés
Weboldal link
0
Videó link
0
Cim
Magyarország

Budapest VII. kerület
Ligetváros
Hirdetés leirása
Hirdetés azonosító:39376