Ajánlói Link másolása
VI. kerület
kep Galéria
kep
kep
kep
kep
Feladva:2025-10-06 02:01
Profi hirdetés kiemelés előresorolással kiemelés 20+5 napig
Budapest VI. kerület
109 900 000 Ft
VI. kerület
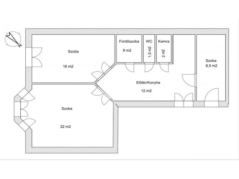
Diplomatanegyed szívében – világos, különnyíló szobás lakás eladó liftes házban. Elhelyezkedés: Diplomatanegyed, frekventált környék. Emelet: 2. emelet (liftes ház). Szobák: 2 + ½ . Fűtés: gáz cirkó. Állapot: jó állapotú. Közművek: minden mért fogyasztás alapján fizetendő. Ez a napfényes, kiváló elrendezésű lakás Budapest egyik legpatinásabb városrészében, a Diplomatanegyed frekventált, mégis kellemesen élhető részén található. A 23 m²-es nappali gyönyörű félköríves panorámaablakával különleges atmoszférát teremt, amely ritkaságszámba megy ezen a környéken. A nappali mellett két külön nyíló hálószoba, kádas fürdőszoba, külön WC, konyha, kamra, étkező, valamint előszoba teszik teljessé a praktikus alaprajzot. A lakás a 2. emeleten található, egy liftes, rendezett társasházban, így idősek és családok számára is kényelmes választás. Kiváló elhelyezkedés és infrastruktúra Oktogon, Hősök tere, Városliget és az Állatkert rövid sétatávolságra Közelben boltok, cukrászdák, iskolák, óvodák, bölcsődék Kiváló tömegközlekedés: 72-es és 75-ös troli 5-ös busz kisföldalatti (M1) ✨ Kinek ajánlom? Akik klasszikus városi miliőt keresnek kiváló közlekedéssel Családoknak, akik szeretnének külön hálószobákat és praktikus elosztást Befektetőknek, akik értékelik a belváros közelségét és a stabil bérbeadási lehetőséget
Bruttó ár
109 900 000 Ft
Elérhetőségek
+36-... Megjelenítés
Weboldal link
0
Videó link
0
Cim
Magyarország

Budapest VI. kerület
Szondi utca
Hirdetés leirása
Hirdetés azonosító:38048