Ajánlói Link másolása
V. kerület
kep Galéria
kep
kep
kep
kep
Feladva:2025-12-04 02:02
Profi hirdetés kiemelés előresorolással kiemelés 20+5 napig
Budapest V. kerület
179 000 000 Ft
V. kerület
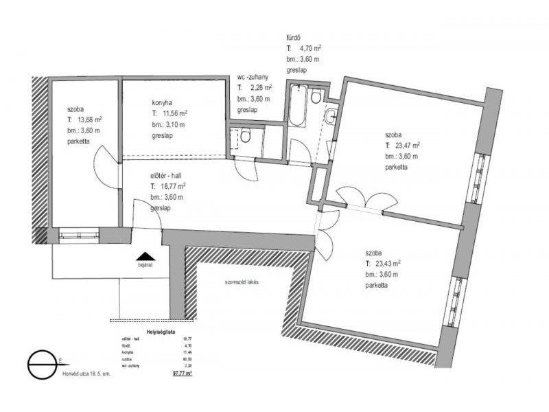
Eladó felújított, tágas, 3 szobás lakás Budapest szívében Ritka lehetőség a belváros egyik legkedveltebb részén! A Honvéd utcában kínálunk megvételre egy összesen 101 m²-es, teljeskörűen felújított, nagy terekkel rendelkező, 3 szobás, 2 fürdőszobás gyönyörű otthont. A lakás 2025-ben átfogó felújításon esett át, melynek során új műanyag, redőnyös kültéri nyílászárókat, modern burkolatokat és minőségi szanitereket kapott. Az ingatlan elosztása rendkívül praktikus: különnyíló szobák, egy kádas és egy zuhanyzós fürdőszoba is szolgálja a kényelmet – így családoknak, pároknak és akár kiadásra is ideális választás. Az 5. emeleti elhelyezkedésnek köszönhetően a lakás világos, csendes, a jó állapotú, karbantartott társasház pedig lifttel rendelkezik, ami még kényelmesebbé teszi a mindennapokat. A közös költség tartalmazza a víz és fűtés díját. Főbb jellemzők: • Alapterület: 101 m² • Elosztás: 3 szoba • 2 fürdőszoba (kád + zuhany) • 2025-ben teljeskörű felújítás • Új műanyag nyílászárók, redőnyök • 5. emelet, liftes ház • Csendes, tágas, azonnal költözhető Irányár: 179.000.000 Ft Ha szeretnél egy frissen felújított, elegáns és kiváló lokációjú lakást Budapest belvárosában, ne hagyd ki ezt a lehetőséget! Kiváló befektetés és kényelmes otthon egyben. Keressen bizalommal! Fehér Judit 06 70 376 2475
Bruttó ár
179 000 000 Ft
Elérhetőségek
+36-... Megjelenítés
Weboldal link
0
Videó link
0
Cim
Magyarország

Budapest V. kerület
Honvéd utca
Hirdetés leirása
Hirdetés azonosító:39401