Ajánlói Link másolása
IV. kerület
kep Galéria
kep
kep
kep
kep
Feladva:2025-11-08 02:10
Profi hirdetés kiemelés előresorolással kiemelés 20+5 napig
Budapest IV. kerület
70 500 000 Ft
IV. kerület
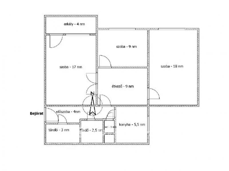
ÚJPESTEN, az Árpád Üzletház közelében eladó egy 71 nm-es, 3 szobás + étkezős, ERKÉLYES, azonnal költözhető panel lakás! ✨ Világos, délnyugati tájolású otthon, kiváló elosztással, a 4. emeleten. Alacsony rezsi, távfűtés (átalány: kb. 15.000 Ft), közös költség 24.000 Ft/hó (megtakarítással). Egyedi mérésű víz és villany, tehermentes, 1/1 tulajdon. Rendezett társasház: Felújított lift , tiszta lépcsőház, pozitív megtakarítási alap, kulturált lakóközösség, ingyenes parkolás az utcán . Közlekedés: 20E, 25, 120, 121-es buszok a közelben. Pár perc sétára boltok, pékség, SPAR, Penny, gyógyszertár, cukrászda , parkok , Árpád Üzletház. Családoknak és befektetőknek is remek választás! Ha szeretné megtekinteni, hívjon bizalommal!
Bruttó ár
70 500 000 Ft
Elérhetőségek
+36-... Megjelenítés
Weboldal link
0
Videó link
0
Cim
Magyarország

Budapest IV. kerület
Rózsa utca
Hirdetés leirása
Hirdetés azonosító:38441