II. kerület
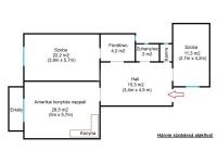
Budapest II. kerületében a Rózsadomb lábánál, a Duna part és a Szent Lukács Gyógyfürdő közelében, 1910-es években polgári stílusban épült, folyamatosan karbantartott, jó állapotú, liftes társasházban, 2. emeleti, KIVÁLÓ ADOTTSÁGÚ, TÖKÉLETES ELOSZTÁSÚ, 84 nm-es, 2 szoba + hallos, (könnyedén 3 szobássá alakítható) DUPLA KOMFORTOS, ablakos konyhás, kamrás, ablakos fürdőszobás, napos-világos fekvésű, kombinált gázcirkó fűtésű, utcára néző erkélyes, thermo ablakokkal szerelt, TEHERMENTES, rugalmasan birtokba vehető, 2018-ban felújított lakás, beépített, gépesített konyhával, 4 nm-es pince tárolóval, kulturált lakóközösségű társasházban eladó.
Az ingatlanban 2018-ban az elektromos hálózat, vízvezeték, fűtés korszerűsítés, nyílászárók, hidegburkolatok felújításra kerültek.
A környék biztonságos, infrastruktúrája és közlekedése kitűnően ellátott. A Margit sziget, Mechwart liget pár perc sétával elérhető!!
Az ingatlan kitűnő elhelyezkedésének köszönhetően, kiválóan alkalmas üzleti vagy egyéb tevékenységekre is, mint például iroda, orvosi rendelő, hosszú vagy rövid távú bérbeadás.
Ezt a lakást érdemes megnézni!
További információkért várom megtisztelő hívását.
EA