Ajánlói Link másolása
II. kerület
kep Galéria
kep
kep
kep
kep
Feladva:2025-11-08 02:09
Profi hirdetés kiemelés előresorolással kiemelés 20+5 napig
Budapest II. kerület
240 000 000 Ft
II. kerület
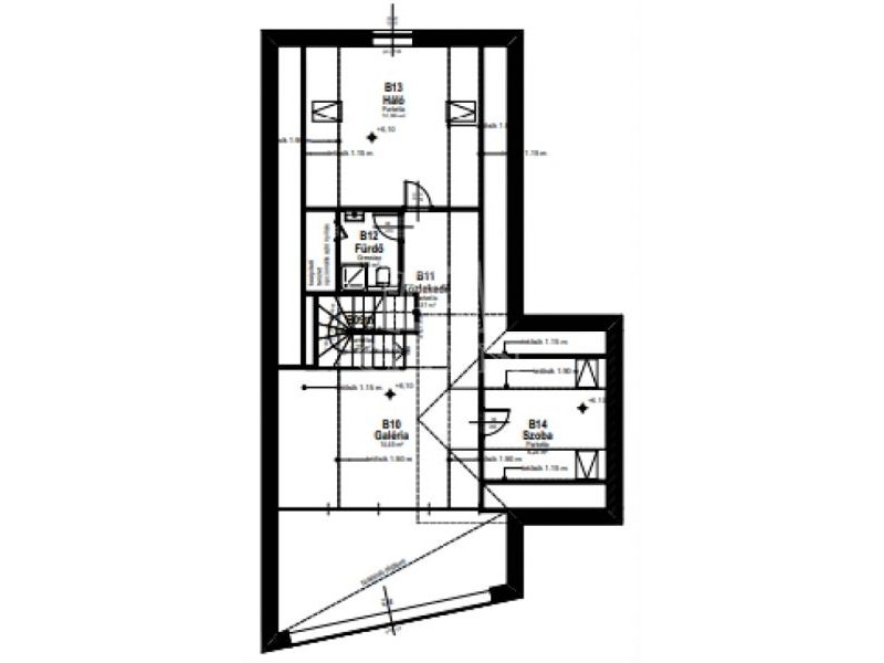
Hegyvidéki panoráma! Minőségi munkával szerkezetkész állapotban, 60%-os műszaki készültségi fokon kínáljuk eladásra a hirdetésben szereplő készülő családi házat. Csupán egy lakóegység esetén az árak az alábbiak szerint alakulnak: - földszinti duplex lakás: 120 millió forint, - emeleti duplex lakás: 130 millió forint.
Bruttó ár
240 000 000 Ft
Elérhetőségek
+36-... Megjelenítés
Weboldal link
0
Videó link
0
Cim
Magyarország

Budapest II. kerület
Pesthidegkút
Hirdetés leirása
Hirdetés azonosító:38585