Ajánlói Link másolása
II. kerület
kep Galéria
kep
kep
kep
kep
Feladva:2025-10-09 02:03
Profi hirdetés kiemelés előresorolással kiemelés 20+5 napig
Budapest II. kerület
59 900 000 Ft
II. kerület
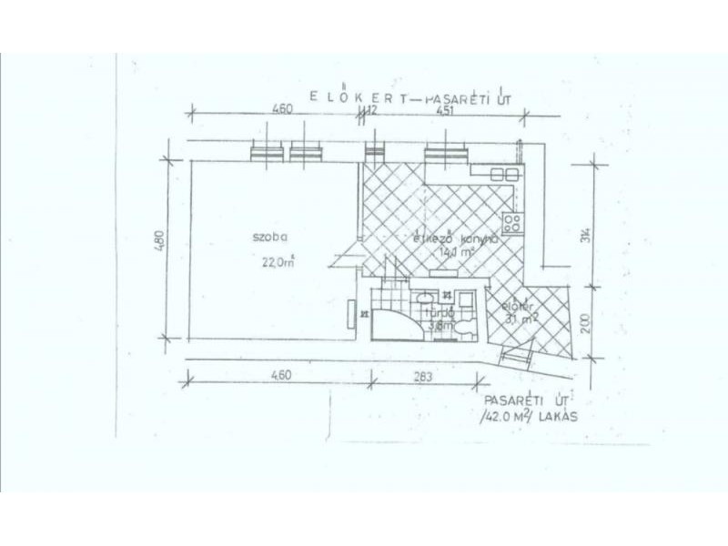
II. Ker Pasaréti úton 42nm-es, konyha- nappali+szoba +fürdőszobás, ÉK-i tájolású előkertre néző szuterenlakás eladó. Fűtés gazkonvektoros. Fürdőszoba sarokkádas. A lakáshoz tároló helység is tartozik. A társasház kertje osztatlan közös tulajdon. Autobeallasi lehetőség az udvaron biztosított. 5-ös busz megállója 2 percre. Ár 59.9mft 70//605 //0504
Bruttó ár
59 900 000 Ft
Elérhetőségek
+36-... Megjelenítés
Weboldal link
0
Videó link
0
Cim
Magyarország

Budapest II. kerület
Pasaréti út
Hirdetés leirása
Hirdetés azonosító:38142