Ajánlói Link másolása
Kiadó Miskolc
kep Galéria
kep
kep
kep
kep
Feladva:2025-09-04 02:11
Profi hirdetés kiemelés előresorolással kiemelés 20+5 napig
Miskolc
743 040 Ft
Kiadó Miskolc
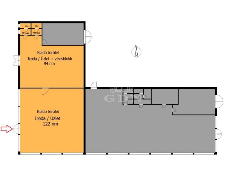
Kitűnő elhelyezkedésű, újszerű esztétikai és műszaki állapotú, 216 nm-es iroda/üzlethelyiség kiadó! Az ingatlan Miskolcon, a Kis-Hunyad utcában, a belvárostól pár percre található. Az iroda fszt+1 emelet tagoltságú, utcafrontja nagy üvegfelülettel rendelkezik, így kiválóan reklámozható. Az ingatlan magas minőségű nyílászárókkal és beltéri ajtókkal szerelt, a gazdaságos fűtést gázcirkó kazán látja el radiátoros hőleadással, valamint a helyiségek légkondicionálóval is fűthetők és hűthetők. Az ingatlan irodai célon kívül alkalmas lehet pl. magánrendelőnek, vagy bemutatóteremnek is. Az épület közvetlen parkolási lehetőséggel rendelkezik. Igény szerint a méret 366 nm-ig bővíthető, mely 244 nm földszinti, üvegportálos üzlethelyiséget, valamint 122 nm emeleti irodákat tartalmazhat. Ár: 3440 Ft/nm+Áfa/hó (rezsiköltséget az ár tartalmazza). A hirdetésben megadott bérleti díj a rezsiköltséget tartalmazza! Érdeklődése esetén további információkért és megtekintés egyeztetéséhez, keressen bizalommal! Ha eladó vagy kiadó ingatlana van és segítségre szorul az ingatlanpiacon, keresse irodánkat! Hitel, CSOK, értékesítés, értékbecslés és minden, ami ingatlan!
Bruttó ár
743 040 Ft
Elérhetőségek
+36-... Megjelenítés
Weboldal link
0
Videó link
0
Cim
Magyarország
Borsod-Abaúj-Zemplén megye
Miskolc
Kis-Hunyad utca
Hirdetés leirása
Hirdetés azonosító:37055