Ajánlói Link másolása
Jakabszállás
kep Galéria
kep
kep
kep
kep
Feladva:2025-11-14 03:05
Profi hirdetés kiemelés előresorolással kiemelés 20+5 napig
Jakabszállás
22 500 000 Ft
Jakabszállás
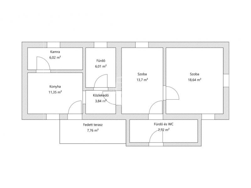
Otthonok és megoldások! Jakabszállás külterületén, a város zajától távol, csendes és nyugodt természeti környezetben eladóvá vált egy 43.791 négyzetméteres (4,37 hektáros) birtok. Az ingatlan kiváló választás azoknak, akik gazdálkodásban gondolkodnak, vagy csupán a vidéki élet nyugalmát keresik egy tágas, lehetőségekkel teli területen. A körbekerített birtok központi részén, egy hatalmas diófa árnyékában található a hozzávetőlegesen 80 négyzetméter alapterületű főépület. A ház vályog falazatú, amely híresen jó hőtartó képességgel rendelkezik: nyáron hűvös, télen jól tartja a meleget. Az épületen 1995-ben teljes tetőcserét hajtottak végre. Jelenlegi állapotát tekintve felújítandó, így az új tulajdonos saját igényei szerint alakíthatja ki vagy bővítheti álmai otthonát. A vízellátásról fúrt kút gondoskodik, a szennyvízelvezetés derítővel megoldott. A lakóépület mellett az udvaron több, szintén felújítást igénylő melléképület és ól található, amelyek alapot biztosítanak állattartáshoz vagy tároláshoz. Főbb paraméterek: Telekméret: 43.791 m2 (4,37 ha) Lakóépület alapterülete: 80 m2 Szobák száma: 3 Építés éve: 1966 Szerkezet: Vályog (1995-ben új tető) Közművek: Villany, fúrt kút, derítő Állapot: Felújítandó Amennyiben hirdetésem felkeltette érdeklődését, és szeretné személyesen is megtekinteni az ingatlanban rejlő lehetőségeket, várom megtisztelő hívását.
Bruttó ár
22 500 000 Ft
Elérhetőségek
+36-... Megjelenítés
Weboldal link
0
Videó link
0
Cim
Magyarország
Bács-Kiskun megye
Jakabszállás
II.ker
Hirdetés leirása
Hirdetés azonosító:29074