Ajánlói Link másolása
Jánoshalma
kep Galéria
kep
kep
kep
kep
Feladva:2025-12-20 05:34
Profi hirdetés kiemelés előresorolással kiemelés 20+5 napig
Jánoshalma
350 000 000 Ft
Jánoshalma
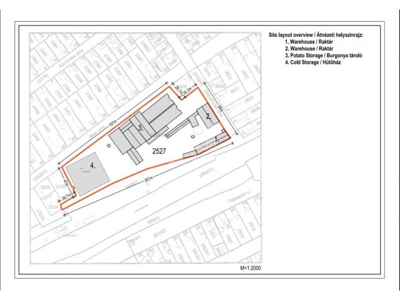
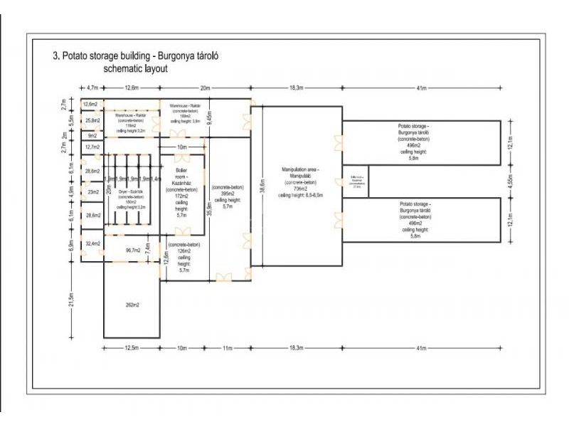
Otthonok és megoldások! Jánoshalma belterületén, a vasútállomás közvetlen közelében, 2,1 ha ipari terület eladó. Az telken található kb. 8500 nm felépítmény egységei: - 2100 nm többhelyiséges raktárépület, mely 3 db összesen több mint 900 nm működő hűtőkamrát magába foglal. Belmagasság: 6,3 m. - Több ezer nm beton és téglaépület, mely burgonya tároló és szárító üzemként funkcionált. -További 2 db. egyenként kb. 500 nm hidegraktár. - Kb. 440 nm felújítandó irodaház. - 15 nm mérlegház, 20 tonnás ipari mérleggel. A víz városi vízhálózatról illetve saját fúrt kútról is biztosított, a szennyvíz elvezetése a városi csatorna hálózaton történik. Az áram ellátás 2-szer 3X160 amper. Az ingatlan területén működő ipari vasúti vágány is található. A be nem épített terület beton borítású, bármilyen nehéz jármű használhatja. Várom megtisztelő érdeklődését erre a számtalan lehetőséget nyújtó, értékes ingatlanra! Hívjon bátran!
Bruttó ár
350 000 000 Ft
Elérhetőségek
+36-... Megjelenítés
Weboldal link
0
Videó link
0
Cim
Magyarország
Bács-Kiskun megye
Jánoshalma
Vasútállomás közelében
Hirdetés leirása
Hirdetés azonosító:18826